LoadMonitor N800
概要
- プレス機械のオーバーロード防止
- 品質効果 適正荷重による不良率の低減
- 簡単セットアップ
- 4チャンネルロードモニター
- 1停止リレー(上死点停止または非常停止)
- 反転荷重
- 100型のプレス加工荷重の記憶
- バックライト付LCDディスプレー
- RS422シリアルポート
- 各チャンネル5桁KN LED表示
- メニュー方式のユーザーインタフェース
- コンパクト防塵筐体
- 24VDC電源入力
ソフト互換:
プレスネット、
TTグラフ
オプション:
8チャンネルモデル
2つのRS422シリアルポート追加
CCMリゾバー入力(クリティカルカーブモニタリング)
デジタルディスプレー
ディスプレイが5桁になり,トン数表示からキロニュートンkN表示に対応。
2~4個の ロードセンサーを接続して,各チヤンネルごとの荷重と総合荷重をすべて一斉に表示する高機能製品。
本体正面の中心位置に表示される液晶ディスプレイは、毎回の荷重の波形を表示。
波形表示
クリティカルカープモニター
金型製作関係者には必須のアイテム。
仕様
荷重入力
チャンネル数 : 4チャンネル標準(オプション 8チャンネル)
センサー入力 : ストレインゲージ センサー
120 ~ 1,000オーム 、350オームを8個まで接続可能
センサー状態 : 組み込み12VDC @ 300mA 最大(短絡保護回路付)
センサー入力コネクター: 5-pin .15ピッチ フェニックスコネクター
バランス調整 : 25回転ポテンショメーター、電位差計
バランスレンジ : (手動ゼロバランス) +/- 1mV/V
ゲイン(増幅率)調整 : 25回転ポテンショメーター、電位差計
ゲイン(増幅率)レンジ : ローゲイン(×1)50 ~ 550
高ゲイン : ハイゲイン(×10)500~ 5,500
アナログアウトプット : 1.25VDC @ プレス能力
アナログアウトプットコネクター: 9-pin sub-D コネクター
誤差 : 最大測定誤差 +/- 1%
非直線性(ノンリニアリティー) : 最大測定誤差 +/- .1%
周波数反応 : 0 to 6 KHz
解像度 : 5桁荷重数値表示 1024解像度
校正(カリブレーションシャント) : 1 メガオーム, 0.1% レジスター
金型記憶 : 100
入力回転数 : スレッシュホールドトリガー 400 SPM プローブトリガー2,000 SPM
表示器 LCD : バックライトつきユーザーインタフェースディスプレー
1.5”x2.75” LCD グラフィックディスプレー(64x128 pixel)
LED : (5) 7分類5LED ディスプレー,
メニュー方式キーパッド : 6触感スイッチ
コンピューター : シリアルポート1 RS422 (9,600 to 115,200ボー)
(プレスネット、TTグラフソフトウエアインターフェース用)
インターフェース : シリアルポート2, 3 (オプション)
RS422 (9,600 to 115,200 baud)
データ伝送 :プローブ入力 プローブ用入力電圧(12VDC, 50 mA max) 、
NPN 、 PNP 近接プローブ
出力リレー : 上死点停止リレーないし非常停止リレー1C接点
8 AMP @ 250VACないし30VDC(DC30V8A,AC250V8A)
供給電源 : 最大30 ワット 85-132VAC @ 50-60Hz
170-264VAC @ 50-60Hz
電源入力はジャンパー選択可能
フューズ 110VAC 入力用0.5A 220VAC 入力用0.25A
TR5 タイプ, スローブロー
動作温度 : 0~70 度C
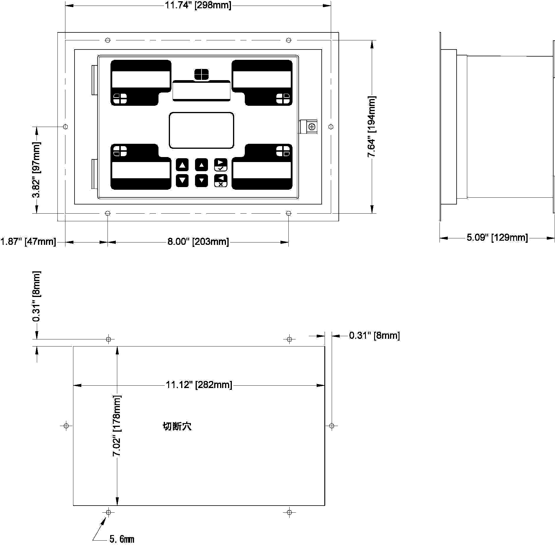
寸法 : 226mm W x 175mm H x 127mm D
重量 : 4kg
寸法


