LoadMonitor N500
N500ロードコントローラー
概要
・不良率を最小限にとどめ、段取り時間を最小限にします。
・古いプレスでも正確な荷皿表示が可能。プレスをオーバーロードから守ります。
・数値で管理することで、金型の磨耗・異常を把握、金型寿命を飛躍的に向上させ!
特長
・4つの荷重設定モードを自由に選択。チューニングノプで簡単設定
・バーグラフと荷重値、生産数などをディジタルディスプレーで表示します。
・アナログ波形はレコーダー出力から簡単取出し
・ノイズに強い特殊センサーケーブルを採用。
・スレッシュホールド400SPMプローブ300SPMまで測定可能
・TTグラフソフトで波形をコンピューターで分析
・高機能、低価格、
選べる4つのオペレーションモード
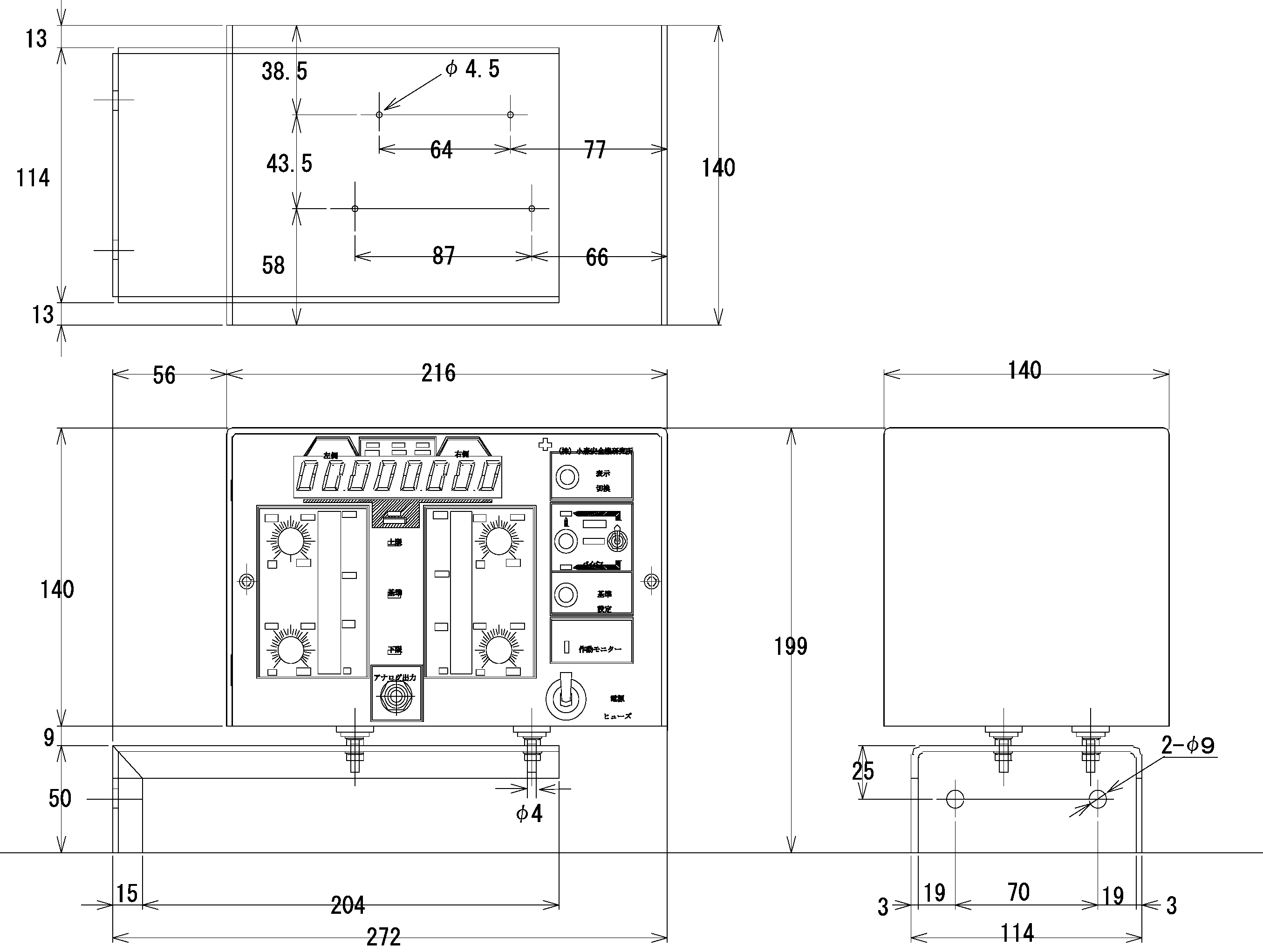
仕様
測定モード : マルチファンクション 4モード切替
デジタル表示 : 3桁×2個
表示kN数 :100~9900 kN(総合)
表示kN数 :100~650kN(左右)
片側3桁表示999=150%表示→650× 150=975kN
センサータイプ :ストレインゲージ・センサー 350Ω 2個
センサー数 :2 チャンネル標準 N502(オプション 4 チャンネル N504)
センサー入力 :± 10 VDC 最大125 mA
センサー感度 :0.057 mv/v ~ 0.625 mv/v ハイゲインレンジ AT キャパシティ
0.568 mv/v ~ 5.00 mv/v ローゲインレンジ
センサーの温度出力による自動補正機能
シャント抵抗 :1MΩ (0.1%)
リレー出力 :1極双投 C接点、 10A at 120VAC
手動ゼロバランス :±1mV/V
ゲイン調整 :ローゲイン(×1) ゲイン率40 ~ 440
ハイゲイン(× 10) ゲイン率400 ~ 4400
周波数応答 : 0 ~ 1 kHz
入力回転数 :0 ~ 400spm(スレッシュホールドトリガー)
400 ~ 3000spm(カムプローブトリガー)
カム入力 :10 ~ 30VDC 最大50 m A NPN、PNP近接スイッチ
またはリミットスイッチ
プローブ入力 :NPNまたはPNP近接スイッチ(24VDC,50mA MAX)
アナログ出力 :0 ~ 2.5VDC(6.35” ステレオジャック)
コンピュータ
インタ-フェイス :(オプション)R S485・232 出力端子
消費電力 :3W 90~130VAC 50~60HZ
動作温度 :0 ~ 70℃
外形寸法 :247(横)× 210(高)×140(奥)
対応ソフト :プレスネット2.0コンパチブル、TTグラフソフトウエア
寸法

